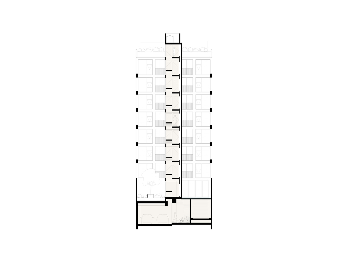
Torre NL219
Tipo de proyecto
Vivienda Vertical
Servicio
Arquitectura, Vivienda Vertical, Torres
Ubicación
CDMX
Año
2023
Superficie de construcción
3,579 m2
Superficie de terreno
506 m2
Cantidad de viviendas
30
Colaboración
Interiorismo: Factor neutral Renders: Vertex Studio





.png)










